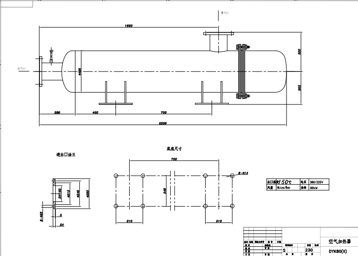
氮气电加热器
氮气电加热器技术要求: 1. 系统总流量:1000Nm3/h; 2. 工作介质:氮气; 3. 工作温度范围:入口温度 ℃;出口温度 ℃; 4. 设计温度200℃。 5. 功率:380V,三相五线,设计功率不小于50kW; 6. 工作压力:1.0MPa,存在短时间负压工作状态,工作压力10-4Pa~1000Pa。炉体耐压2.5MPa。 7. 热效率:>90%;【江苏扬天电热设备有限公司】——信息化 数字化 智能化——義飛扬天——防爆电加热器专业制造商——为新时代中国制造加油助力——全国尊贵热线:400-777-5525 8. 传感器配置:炉芯配置保护热电阻(Pt100)1支/台(全部安装),四线制; 9. 结构形式:立式,紧凑型、管道式加热器、全不锈钢材质、氩弧焊接,炉体上配有外保温安装支架,炉体外保温由甲方完成; 10. 加热管形式:采用间热式加热管; 11. 进出口法兰:DN80 HG/T 20615-2009,配套成对不锈钢活套法兰DN80、螺栓、螺母、密封垫片x2; 12. 防护等级:IP65; 13. 炉体材质:S30408; 14. 设备连续工作时间不小于30d。
查看详情